Descriere Imobil
Apartament 3 camere de vanzare, semidecomandat, 50 mp, zona Mihai Viteazul, Sibiu.Pretul e mic si potentialul este mare. Zona in care este amplasata este foarte frumoasa.
Apartamentul se afla pe strada Aleea Biruintei nr 1, scara B si se vinde in sistem de reprezentare exclusiva si comision 0% pentru cumparator. Printre avantajele locatiei mentionam proximitatea fata de centrul Sibiului, Profi, gradinita, scoala gimnaziala, gradinita fratii Grimm. Haideti sa vedeti apartamentul, sa il intelegeti si sa va imprieteniti, pentru ca e posibil sa va petreceti aici urmatorii multi ani din viata, impreuna. Se preteaza unei familii restranse sau unui cuplu, care doreste sa se bucure de linistea si siguranta acestei proprietati. Si mai sunt si niste vecini foarte cumsecade, liniste si intimitate dincolo de asteptarile dumneavoastra. Daca esti in cautarea unui cuib pentru familia ta, aceasta proprietate este alegerea perfecta.
Avantaje majore ale acestui apartament:
• Bloc cu acoperis si apartament orientat spre soare
• Pivnita
• Locatie ferita de aglomeratie
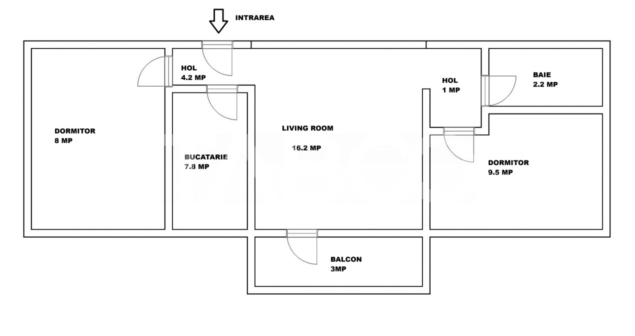
TABOO Imobiliare propune un apartament de vanzare cu 3 camere, semidecomandat, situat in localitatea Sibiu, zona Mihai Viteazul, aflat la etajul 4 intr -un imobil tip bloc cu regim de inaltime pe Parter + 4 Etaje; anul constructiei 1980, structura beton. Suprafata utila de 50 mp + balcon de 3 mp.
Apartamentul este structurat astfel:
• Hol de compartimentare;
• Bucatarie separata;
• Baie cu cada;
• Living cu balcon;
• Dormitor;
• Dormitor.
Finisajele interioare sunt clasice.
• Usa intrare: metal;
• Usi interioare: lemn;
• Tamplarie ferestre: lemn;
• Pereti: vopsea lavabila, faianta;
• Podele: parchet, gresie.
Utilitati si dotari:
• Bucatarie: mobilata, utilata;
• Mobilat: complet;
• Utilitati: curent electric, apa, canalizare, gaz, catv, telefon, acces internet, fibra optica;
• Contorizare: apometre, contor gaz, contor curent electric, contorizare separata;
• Caracteristici bloc: interfon, acoperis.
Apartamentul se vinde mobilat si utilat cu: aragaz, cuptor, hota, masina de spalat rufe, uscator rufe, masina de spalat vase, frigider cu congelator.
Incalzirea se realizeaza prin centrala proprie, calorifere.
Se accepta ca si modalitate de plata surse proprii sau credit bancar.
Strada Biruintei - Apartament de renovat cu potential deosebit
Detalii Proprietate
Bucatarie
- Mobilata
- Utilata
Dotari
- Complet
- Pivnita
- Mobilata
- Utilata
- Apometre
- Contor gaz
- Masina de spalat rufe
- Aragaz
- TV
- Interfon
- Acoperis
Finisaje
- Finisat
- Vopsea lavabila
- Faianta
- Parchet
- Gresie
- Lemn
- Metal
- Lemn
Oferte similare în zona Mihai Viteazul:
Proprietăți asemănătoare:
