Descriere Imobil
Garsoniera cu o camera de vanzare, decomandata, 35 mp, zona Tilisca, Sibiu.Avantaje majore ale acestei garsoniere:
• Bloc nou cu lift
• Pivnita de depozitare de aproximativ 2 mp
• Pozitionarea este foarte buna.
• Zona retrasa cu oameni linistiti, in imediata apropiere al noului parc Belvedere.
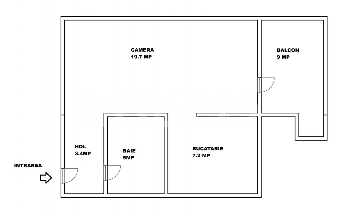
TABOO Imobiliare propune o garsoniera de vanzare cu o camera, decomandata, situata in localitatea Sibiu, zona Tilisca, aflata la etajul 2 intr -un imobil tip bloc cu regim de inaltime pe Parter + 3 Etaje; anul constructiei 2008, structura caramida. Suprafata utila de 35mp + balcon de 9 mp.
Garsoniera este structurata astfel:
• Hol;
• Bucatarie;
• Baie;
• Living cu balcon;
• Depozitare la subsolul blocului
Finisajele interioare sunt clasice:
• Usa intrare: metal;
• Usi interioare: celulare;
• Tamplarie ferestre: pvc, termopan;
• Pereti: vopsea lavabila, faianta;
• Podele: parchet, gresie.
Utilitati si dotari:
• Bucatarie: mobilata, utilata;
• Mobilat: complet;
• Utilitati: curent electric, apa, canalizare, gaz, catv, telefon, acces internet, fibra optica;
• Izolatii: exterior, bloc izolat termic;
• Contorizare: apometre, contor gaz, contor curent electric, contorizare separata;
• Caracteristici bloc: interfon, lift, acoperis.
Garsoniera se vinde mobilata si utilata cu: plita electrica, cuptor, hota, masina de spalat rufe, masina de spalat vase, frigider cu congelator.
Incalzirea se realizeaza prin centrala proprie, calorifere si dispune de sistem de climatizare (A.C.).
Se accepta ca si modalitate de plata surse proprii sau credit bancar.
Garsoniera decomandata de vanzare cu lift si pivnita Colinei Sibiu
Detalii Proprietate
Bucatarie
- Mobilata
- Utilata
Dotari
- Complet
- Pivnita
- Mobilata
- Utilata
- Apometre
- Contor gaz
- Masina de spalat rufe
- Frigider
- Masina de spalat vase
- Hota
- Interfon
- Lift
- Acoperis
Finisaje
- Finisat
- Exterior
- Bloc izolat termic
- Vopsea lavabila
- Faianta
- Parchet
- Gresie
- PVC
- Metal
- Celulare
Oferte similare în zona Tilisca:
Proprietăți asemănătoare:
