Descriere Imobil

Apartament 2 camere de inchiriat, decomandat, 58 mp, zona Doamna Stanca, Sibiu. 
Apartament mobilat si utilat premium, situat la etajul 1 cu lift, loc de parcare privat, in imediata apropiere de Shopping City.

Avantaje majore ale acestui apartament:
• Camerele decomandate cu bucataria separata
• Etajul 1 cu balcon tip logie, vedere spre munti
• Balcon tip logie
• Aer conditionat 

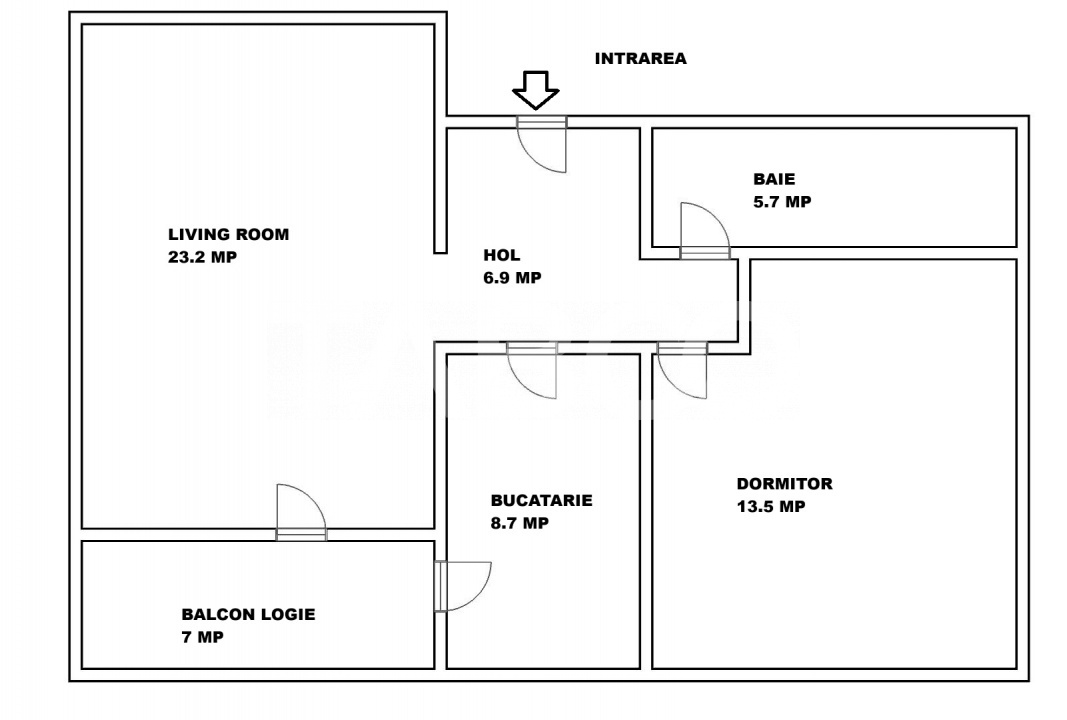
TABOO Imobiliare propune un apartament de inchiriat cu 2 camere, decomandat, situat in localitatea Sibiu, zona Doamna Stanca, aflat la etajul 1 intr -un imobil tip bloc cu regim de inaltime pe Parter + 8 Etaje; anul constructiei 2024, structura caramida. Suprafata utila de 58 mp + balcon de 3 mp.

Apartamentul este structurat astfel:
• Hol de compartimentare;
• Bucatarie separata;
• Baie cu dus;
• Living cu balcon;
• Dormitor;
• Dressing;

Finisajele interioare sunt de lux:
• Usa intrare: metal;
• Usi interioare: celulare;
• Tamplarie ferestre: pvc, termopan;
• Pereti: vopsea lavabila, faianta;
• Podele: parchet, gresie.

Utilitati si dotari:
• Bucatarie: mobilata, utilata;
• Mobilat: complet;
• Utilitati: curent electric, apa, canalizare, gaz, catv, telefon, acces internet, fibra optica;
• Izolatii: exterior, bloc izolat termic;
• Contorizare: apometre, contor gaz, contor curent electric;
• Caracteristici bloc: videointerfon, supraveghere video, lift.

Apartamentul se vinde mobilat si utilat cu: plita electrica, cuptor, hota, masina de spalat rufe cu uscator rufe, masina de spalat vase, frigider cu congelator.

Incalzirea se realizeaza prin centrala proprie, calorifere si dispune de sistem de climatizare (A.C.).

Pentru a se inchiria acest apartament se achita proprietarului chiria + o luna garantie.

Apartament la prima inchiriere mobilat DE LUX Doamna Stanca

Detalii Proprietate

Bucatarie

  • Mobilata
  • Utilata

Dotari

  • Complet
  • Dressing
  • Mobilata
  • Utilata
  • Apometre
  • Contor gaz
  • Masina de spalat rufe
  • Frigider
  • Masina de spalat vase
  • TV
  • Hota
  • Videointerfon
  • Lift

Finisaje

  • Finisat
  • Exterior
  • Bloc izolat termic
  • Vopsea lavabila
  • Faianta
  • Tapet
  • Parchet
  • Gresie
  • PVC
  • Metal
  • Celulare

Videoclip

Oferte similare în zona Doamna Stanca:

Proprietăți asemănătoare:

suna-ne-acuma
hai-sa-vorbim-pe-whatsapp