Descriere Imobil
OFERTA PENTRU LUNA DECEMBRIE! Pret redus!!COMISION 0% LA ACHIZITIE!!
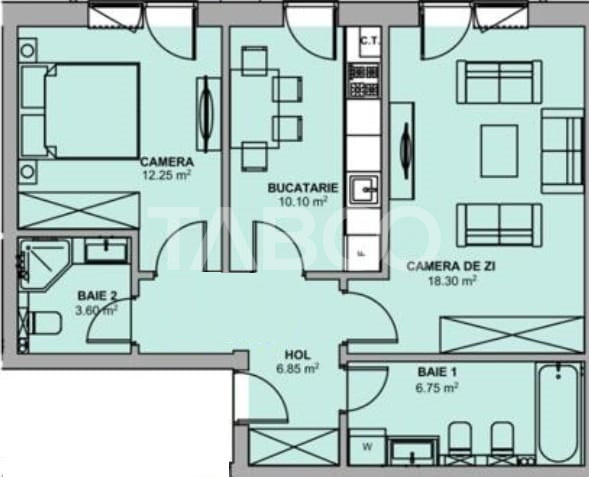
Apartament cu 2 camere decomandate de vanzare pozitionat la etajul 3 al unui imobil constructie noua 2024 finisat cu materiale de cea mai buna calitate si atentie la detalii, cu o suprafata utila de 58 mp si balcon, situat intr-o zona de maxim interes a orasului, mai exact strada Doamna Stanca din Sibiu.
Suprafata si compartimentarea acestui apartament a fost foarte bine gandita astfel la intrarea in locuinta se afla holul de 7 mp, bucatarie inchisa de 10 mp, living luminos si spatios de 18 mp cu iesire in balcon, o baie de 7 mp si dormitorul matrimonial de 12 mp cu iesire pe balcon.
Apartamentul se va preda la CHEIE cu usi interior Porta Doors montate, gresie, faianta, parchet laminat in camere si bucatarie, prize, intrerupatoare Schneider si corpurile de iluminat montate, obiecte sanitare in baie iar incalzirea acestuia se realizeaza prin centrala termica proprie si incalzire in pardoseala de la Sistema cu 10 ANI GARANTIE!!
Imobilul din care face parte acest apartament este o cladire de tip bloc cu regim scazut de inaltime, P+3 Etaje, construit in anul 2023 si beneficiaza de izolatii exterior si supraveghere video pe parcare 24/24H.
Totodata apartamentul beneficiaza si de un LOC PARCARE PRIVAT, bine delimitat in fata imobilului.
Utilitati si dotari:
~ Bucatarie: utilata;
~ Mobilat: partial;
~ Utilitati: curent electric, apa, canalizare, gaz, catv, fibra optica;
~ Izolatii: exterior;
~ Usi interioare: celulare;
~ Contorizare: apometre, contor gaz, contor curent electric;
~ Caracteristici bloc: interfon.
Finisajele interioare:
~ Pereti: vopsea lavabila, faianta;
~ Podele: parchet, gresie;
~ Finisaj: finisat;
~ Geamuri: pvc, termopan;
~ Usa intrare: metal.
Apartament decomandat la cheie 2 camere 58 mpu balcon parcare Sibiu
Detalii Proprietate
Bucatarie
- Nemobilata
- Neutilata
Dotari
- Nemobilat
- Nemobilata
- Neutilata
- Apometre
- Contor gaz
- Interfon
Finisaje
- Finisat
- Exterior
- Vopsea lavabila
- Faianta
- Parchet
- Gresie
- PVC
- Metal
- Celulare
Oferte similare în zona Doamna Stanca:
Proprietăți asemănătoare:
