Descriere Imobil
Apartament 2 camere de vanzare, decomandat, 47 mp, zona Mihai Viteazul, Sibiu. Apartament in zona exceptionala, aflat la ultimul etaj, fara vecini deasupra. Privelistea este garantata.Avantaje majore ale acestui apartament:
• Pivnita spatioasa de depozitare
• Pretabil investitie sigura
• Parcare extra pentru vizitatori
• Locatie ferita de aglomeratie
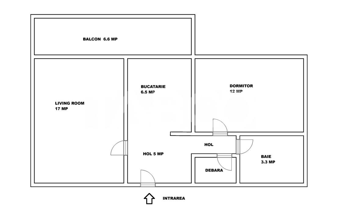
TABOO Imobiliare propune un apartament de vanzare cu 2 camere, decomandat, situat in localitatea Sibiu, zona Mihai Viteazul, aflat la etajul 10 intr -un imobil tip bloc cu regim de inaltime pe Parter + 10 Etaje; anul constructiei 1979, structura beton. Suprafata utila de 47 mp + balcon inchis de 7 mp.
Apartamentul este structurat astfel:
• Hol mare din care se face accesul in toate incaperile;
• Living cu iesire in balcon;
• Bucatarie separata;
• Dormitor;
• Baie cu geam de aerisire;
• Pivnita.
Finisajele interioare sunt moderne:
• Usa intrare: metal;
• Usi interioare: lemn;
• Tamplarie ferestre: pvc, termopan;
• Pereti: vopsea lavabila, faianta;
• Podele: parchet, gresie.
Utilitati si dotari:
• Bucatarie: mobilata, utilata;
• Mobilat: complet;
• Utilitati: curent electric, apa, canalizare, gaz, catv, telefon, acces internet, fibra optica;
• Izolatii: exterior, bloc izolat termic;
• Contorizare: apometre, contor gaz, contor curent electric, contorizare separata;
• Caracteristici bloc: interfon, lift, acoperis.
Apartamentul se vinde mobilat si utilat cu:aragaz, masina de spalat rufe, frigider cu congelator,
Incalzirea se realizeaza prin centrala proprie, calorifere.
Se accepta ca si modalitate de plata surse proprii sau credit bancar.
Apartament decomandat de vanzare 2 camere balcon lift Mihai Viteazul
Detalii Proprietate
Bucatarie
- Mobilata
- Utilata
Dotari
- Complet
- Pivnita
- Mobilata
- Utilata
- Apometre
- Contor gaz
- Masina de spalat rufe
- Frigider
- Aragaz
- Interfon
- Lift
- Acoperis
Finisaje
- Finisat
- Exterior
- Bloc izolat termic
- Vopsea lavabila
- Faianta
- Parchet
- Gresie
- PVC
- Metal
- Lemn
Videoclip
Oferte similare în zona Mihai Viteazul:
Proprietăți asemănătoare:
