Descriere Imobil
Apartament cu 4 camere de vanzare, COMISION 0, decomandat, 102 mp, zona Industrial Vest, Sibiu.Avantaje majore ale acestui apartament:
• Confort termic ridicat, cladirea fiind izolata cu vata minerala, iar incalzirea apartamentului fiind realizata prin centrala proprie, in pardoseala;
• Loc de parcare inclus in pret;
• Jaluzele electrice din aluminiu;
• Orientare sudica cu priveliste superba catre munti;
• La finisare s-au folosit materiale de calitate, cum ar fi usile de la Porta Doors;
• Trei bai.
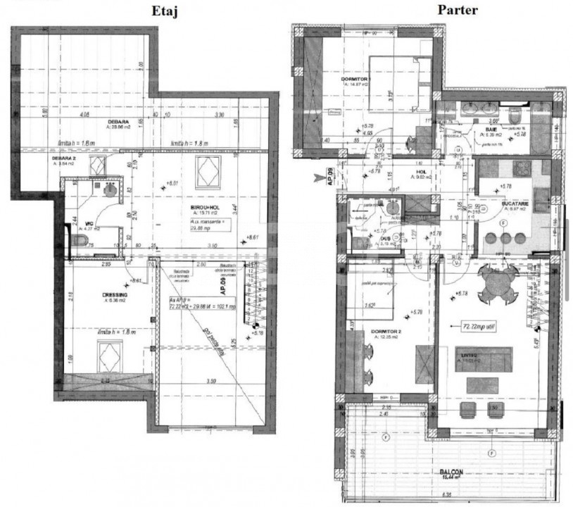
TABOO Imobiliare propune un apartament de vanzare cu 4 camere, decomandat, situat in localitatea Sibiu, zona Industrial Vest, aflat la etajul 2 intr -un imobil tip bloc cu regim de inaltime pe Parter + 2 Etaje; anul constructiei 2024, structura caramida. Suprafata utila de 102 mp + balcon de 15 mp.
Apartamentul este structurat pe doua niveluri astfel:
• Hol;
• Living open space cu bucatarie;
• Trei bai, dintre care una la cel al doilea nivel;
• Balcon;
• Debara;
• Doua dormitoare la primul nivel;
• La al doilea nivel avem un spatiu pentru birou si un dormitor.
Finisajele interioare sunt moderne:
• Usa intrare: metal;
• Usi interioare: lemn;
• Tamplarie ferestre: pvc, termopan;
• Pereti: vopsea lavabila, faianta;
• Podele: parchet, gresie.
Utilitati si dotari:
• Bucatarie: nemobilata, neutilata;
• Utilitati: curent electric, apa, canalizare, gaz, acces internet;
• Izolatii: exterior, bloc izolat termic;
• Contorizare: apometre, contor gaz, contor curent electric;
• Caracteristici bloc: interfon, acoperis.
Apartamentul se vinde nemobilat si neutilat.
Incalzirea se realizeaza prin intermediul centrala proprie, incalzire pardoseala.
Se accepta ca si modalitate de plata surse proprii sau credit bancar.
Apartament decomandat cu 4 camere 3 bai 102 mpu balcon de 15 mp Sibiu
Detalii Proprietate
Dotari
- Nemobilat
- Apometre
- Contor gaz
- Interfon
- Acoperis
Finisaje
- Finisat
- Exterior
- Bloc izolat termic
- Vopsea lavabila
- Faianta
- Parchet
- Gresie
- PVC
- Verticale
- Metal
- Lemn
Oferte similare în zona Industrial Vest:
Proprietăți asemănătoare:
