Descriere Imobil
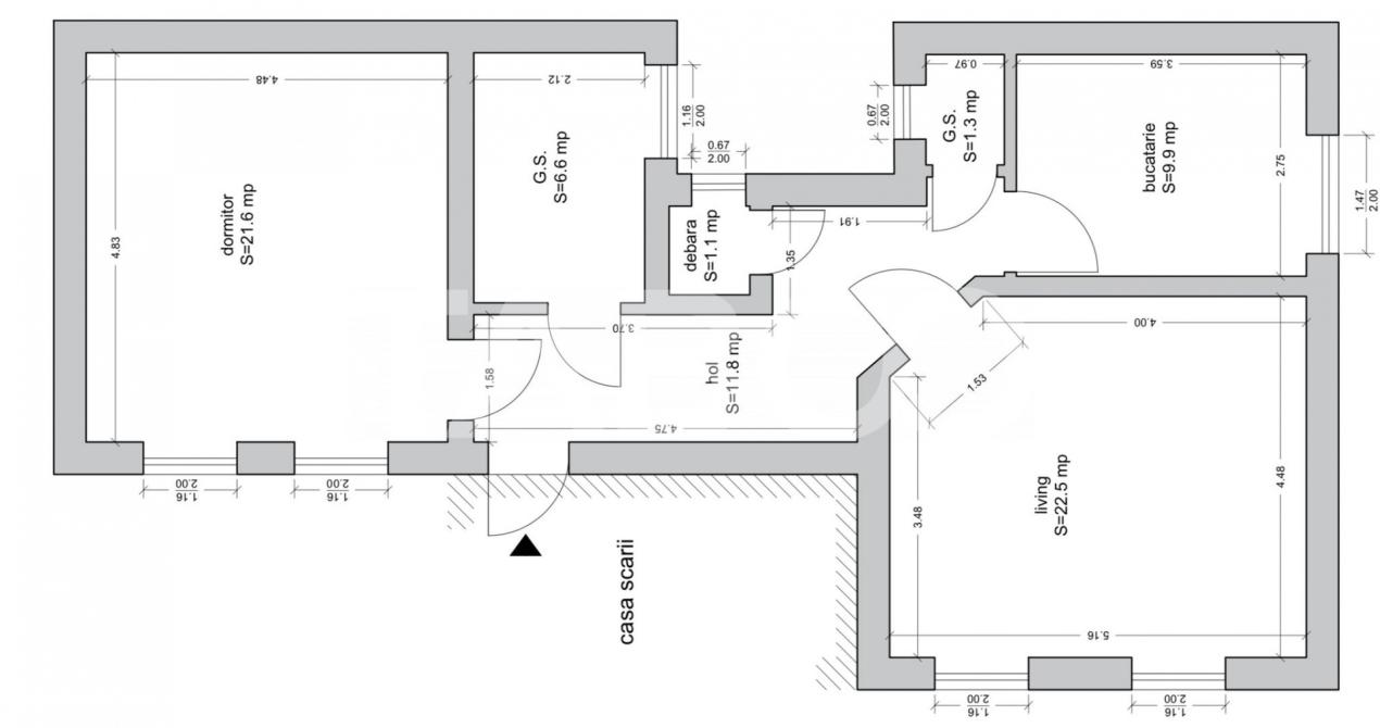
Apartament 2 camere de vanzare, decomandat, 75 mp, zona Central, Sibiu.TABOO Imobiliare propune un apartament de vanzare cu 2 camere, decomandat, situat in localitatea Sibiu, zona Central, aflat la etajul 2 intr -un imobil tip casa/vila cu regim de inaltime pe Parter + 3 Etaje; anul constructiei 1957, structura caramida. Suprafata utila de 75 mp.
Apartamentul este structurat astfel:
• Hol;
• Dormitor;
• Baie;
• Debara;
• WC de serviciu;
• Bucatarie;
• Living.
Finisajele interioare sunt clasice:
• Usa intrare: lemn;
• Usi interioare: lemn;
• Tamplarie ferestre: lemn;
• Pereti: vopsea lavabila, faianta;
• Podele: parchet, gresie.
Utilitati si dotari:
• Bucatarie: mobilata, partial utilata
• Mobilat: complet;
• Utilitati: curent electric, apa, canalizare, gaz, catv;
• Contorizare: apometre, contor gaz, contor curent electric, contorizare separata;
• Caracteristici casa/vila: interfon, acoperis, curte comuna.
Apartamentul se vinde mobilat si partial utilat cu: masina de spalat rufe, frigider cu congelator.
Incalzirea se realizeaza prin soba teracota.
Se accepta ca si modalitate de plata surse proprii sau credit bancar.
Apartament de vanzare 75mp 2 camere 2 bai zona Centrala Sibiu
Detalii Proprietate
Bucatarie
- Mobilata
- Partial utilata
Dotari
- Complet
- Debara
- Mobilata
- Partial utilata
- Apometre
- Contor gaz
- Masina de spalat rufe
- Frigider
- TV
- Interfon
- Acoperis
- Curte comuna
Finisaje
- Necesita renovare
- Vopsea lavabila
- Faianta
- Parchet
- Gresie
- Lemn
- Lemn
- Lemn
Oferte similare în zona Central:
Proprietăți asemănătoare:
