Descriere Imobil
Apartament 2 camere de vanzare, nedecomandat, 41 mp, Cisnadie.Apartament cu 2 camere nedecomandate cu suprafata de 41 mp potrivit pentru o familie. Pozitionarea este foarte buna si are acces catre toate facilitatile orasului. Livingul apartamentului este luminos deoarece camera are geam foarte mare. Bucataria necesita renovare iar in apartamentul are nevoie de centrala. Este un apartament cu perspectiva iar privelistea din balcon este deosebita
Avantaje majore ale acestui apartament:
• Balcon
• Pozitie buna
• Pretabil investitie imobiliara
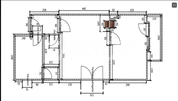
TABOO Imobiliare propune un apartament de vanzare cu 2 camere, nedecomandat, situat in localitatea Cisnadie, aflat la etajul 2 intr -un imobil tip bloc cu regim de inaltime pe Parter + 2 Etaje; anul constructiei 1940, structura caramida. Suprafata utila de 41 mp + balcon de 3 mp
Apartamentul este structurat astfel:
• Hol;
• Bucatarie;
• Baie;
• Living;
• Dormitor cu balcon;
• Camara;
Finisajele interioare sunt clasie
• Usa intrare: metal;
• Usi interioare: lemn;
• Tamplarie ferestre: pvc, termopan;
• Pereti: vopsea lavabila, faianta;
• Podele: parchet, gresie.
Utilitati si dotari:
• Bucatarie: nemobilata, neutilata;
• Mobilat: partial;
• Utilitati: curent electric, apa, canalizare, gaz, catv;
• Contorizare: apometre, contor gaz, contor curent electric;
• Caracteristici bloc: interfon, acoperis.
Apartamentul se vinde partial mobilat si neutilat
Incalzirea se realizeaza prin soba teracota ( trebuie instalata centrala termica)
Se accepta ca si modalitate de plata surse proprii sau credit bancar.
Apartament de vanzare 41 mp 2 camere etaj 2 balcon Cisnadie
Detalii Proprietate
Bucatarie
- Nemobilata
- Neutilata
Dotari
- Partial
- Nemobilata
- Neutilata
- Apometre
- Contor gaz
- Interfon
- Acoperis
Finisaje
- Finisat
- Vopsea lavabila
- Faianta
- Parchet
- Gresie
- PVC
- Metal
- Lemn
Oferte similare în zona :
Proprietăți asemănătoare:
