Descriere Imobil
Apartament 3 camere de vanzare, decomandat, 73 mp, zona Terezian, Sibiu.Un apartament primitor, plin de lumina naturala, in care fiecare zi incepe cu o atmosfera calda si placuta. Un spatiu in care te simti acasa din primul moment, perfect pentru liniste, confort si momente frumoase alaturi de cei dragi.
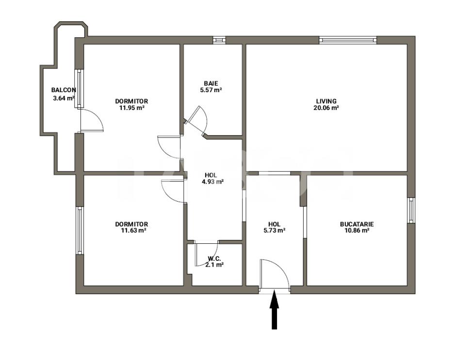
TABOO Imobiliare propune un apartament de vanzare cu 3 camere, decomandat, situat in localitatea Sibiu, zona Terezian, aflat la etajul 5 intr -un imobil tip bloc cu regim de inaltime pe Parter + 8 Etaje; anul constructiei 1990, structura beton. Suprafata utila de 73 mp + balcon de 4 mp.
Apartamentul este structurat astfel:
• Hol;
• Bucatarie;
• Living;
• WC serviciu;
• Dormitor;
• Dormitor cu balcon;
• Baie.
Finisajele interioare sunt clasice:
• Usa intrare: lemn;
• Usi interioare: lemn;
• Tamplarie ferestre: pvc, termopan;
• Pereti: vopsea lavabila, faianta;
• Podele: parchet, gresie.
Utilitati si dotari:
• Bucatarie: mobilata, utilata;
• Mobilat: complet;
• Utilitati: curent electric, apa, canalizare, gaz, catv, telefon, acces internet, fibra optica;
• Izolatii: exterior, bloc izolat termic;
• Contorizare: apometre, contor gaz, contor curent electric, contorizare separata;
• Caracteristici bloc: interfon, lift, acoperis, uscatorie.
Apartamentul se vinde mobilat si utilat cu: plita electrica, cuptor electric, hota, masina de spalat vase, frigider cu congelator.
Incalzirea se realizeaza prin centrala proprie si calorifere.
Se accepta ca si modalitate de plata surse proprii sau credit bancar.
Apartament de vanzare 3 camere decomandat 2 bai 73 mpu Terezian
Detalii Proprietate
Bucatarie
- Mobilata
- Utilata
Dotari
- Complet
- Boxa la subsol
- Mobilata
- Utilata
- Apometre
- Contor gaz
- Frigider
- Aragaz
- Masina de spalat vase
- Hota
- Interfon
- Lift
- Acoperis
- Uscatorie
Finisaje
- Finisat
- Exterior
- Bloc izolat termic
- Vopsea lavabila
- Faianta
- Parchet
- Gresie
- PVC
- Lemn
- Lemn
Videoclip
Oferte similare în zona Terezian:
Proprietăți asemănătoare:
