Descriere Imobil
Apartament 2 camere de vanzare, decomandat, 60 mp, zona Central, Sibiu.Avantaje majore ale acestui apartament:
• Etaj intermediar in bloc cu lift
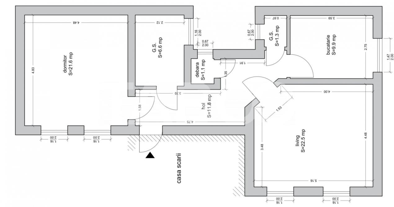
TABOO Imobiliare propune un apartament de vanzare cu 2 camere, decomandat, situat in localitatea Sibiu, zona Central, aflat la etajul intermediar 3 intr -un imobil tip bloc cu regim de inaltime pe Parter + 8 Etaje; anul constructiei 1992, structura caramida. Suprafata utila de 60 mp + balcon de 6 mp.
Apartamentul este structurat astfel:
• Hol;
• Bucatarie cu balcon;
• Living;
• Hol intermediar;
• Baie;
• Dormitor cu balcon.
Finisajele interioare sunt clasice:
• Usa intrare: metal;
• Usi interioare: celulare;
• Tamplarie ferestre: pvc, termopan;
• Pereti: vopsea lavabila, faianta;
• Podele: parchet, marmura.
Utilitati si dotari:
• Bucatarie: mobilata, utilata;
• Mobilat: complet;
• Utilitati: curent electric, apa, canalizare, gaz, catv, telefon, acces internet, fibra optica;
• Izolatii: exterior, bloc izolat termic;
• Contorizare: apometre, contor gaz, contor curent electric, contorizare separata;
• Caracteristici bloc: interfon, lift, acoperis.
Apartamentul se vinde mobilat si utilat cu: plita pe gaz, cuptor electric, hota, masina de spalat rufe, uscator rufe, masina de spalat vase, frigider cu congelator.
Incalzirea se realizeaza prin centrala proprie si calorifere.
Se accepta ca si modalitate de plata surse proprii sau credit bancar.
Apartament de vanzare 2 camere 60mp mobilat utilat balcon zona Central
Detalii Proprietate
Bucatarie
- Mobilata
- Utilata
Dotari
- Complet
- Mobilata
- Utilata
- Apometre
- Contor gaz
- Masina de spalat rufe
- Frigider
- Aragaz
- Masina de spalat vase
- Hota
- Interfon
- Lift
- Acoperis
Finisaje
- Finisat
- Exterior
- Bloc izolat termic
- Vopsea lavabila
- Faianta
- Parchet
- Marmura
- PVC
- Metal
- Celulare
Oferte similare în zona Central:
Proprietăți asemănătoare:
