Descriere Imobil
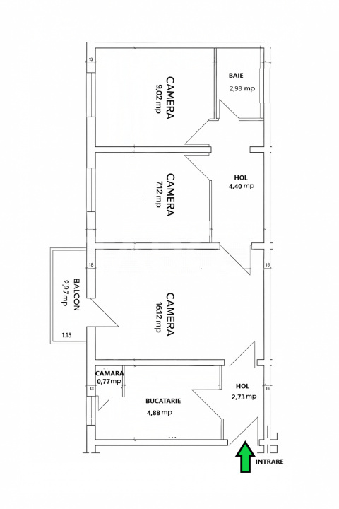
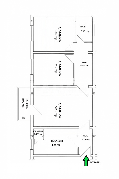
Apartament 3 camere de vanzare, semidecomandat, 48 mp, zona Mihai Viteazul, Sibiu.TABOO Imobiliare propune un apartament de vanzare cu 3 camere, semidecomandat, situat in localitatea Sibiu, zona Mihai Viteazul, aflat la etajul 2 intr -un imobil tip bloc cu regim de inaltime pe Parter + 4 Etaje; anul constructiei 1980, structura beton. Suprafata utila de 48 mp + balcon de 3 mp si pivnita de 7 mp la subsol.
Apartamentul este structurat astfel:
• Hol;
• Bucatarie;
• Baie;
• Living cu balcon;
• 2 Dormitore;
• Hol intermediar;
• Camara;
Finisajele interioare sunt clasice :
• Usa intrare: lemn;
• Usi interioare: lemn;
• Tamplarie ferestre: lemn;
• Pereti: vopsea lavabila, faianta;
• Podele: parchet, gresie.
Utilitati si dotari:
• Bucatarie: mobilata, utilata;
• Mobilat: complet;
• Utilitati: curent electric, apa, canalizare, gaz, catv, acces internet, fibra optica;
• Izolatii: exterior;
• Contorizare: apometre, contor gaz, contor curent electric;
• Caracteristici bloc: interfon.
Apartamentul se vinde mobilat si utilat cu: frigider cu congelator, aragaz.
Incalzirea se realizeaza prin centrala proprie, calorifere.
Se accepta ca si modalitate de plata surse proprii sau credit bancar.
Apartament cu 3 camere la etajul 2 in zona Mihai Viteazul
Detalii Proprietate
Bucatarie
- Mobilata
- Utilata
Dotari
- Complet
- Boxa la subsol
- Mobilata
- Utilata
- Apometre
- Contor gaz
- Frigider
- Aragaz
- Interfon
Finisaje
- Finisat
- Exterior
- Vopsea lavabila
- Faianta
- Parchet
- Gresie
- Lemn
- Lemn
- Lemn
Oferte similare în zona Mihai Viteazul:
Proprietăți asemănătoare:
