Descriere Imobil
Apartament 3 camere de vanzare, semidecomandat, 46 mp, zona Tiglari, Sibiu.Avantaje majore ale acestui apartament:
• Magazine in apropiere;
• Etaj intermediar;
• Cresa, gradinita, scoala in proximitate;
• Mijloce de transport in comun;
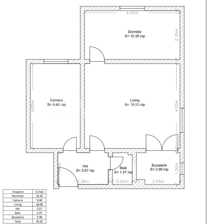
TABOO Imobiliare propune un apartament de vanzare cu 3 camere, semidecomandat, situat in localitatea Sibiu, zona Tiglari, aflat la etajul 3 intr -un imobil tip bloc cu regim de inaltime pe Parter + 4 Etaje; anul constructiei 1970, structura beton. Suprafata utila de 46 mp
Apartamentul este structurat astfel:
• Hol;
• Bucatarie;
• Baie;
• Living ;
• Dormitor ;
• Camara;
Finisajele interioare sunt clasice
• Usa intrare: metal;
• Usi interioare: lemn;
• Tamplarie ferestre: pvc, termopan;
• Pereti: vopsea lavabila, faianta;
• Podele: parchet, gresie.
Utilitati si dotari:
• Bucatarie: mobilata, utilata;
• Mobilat: complet;
• Utilitati: curent electric, apa, canalizare, gaz, catv, telefon, acces internet, fibra optica;
• Izolatii: exterior, bloc izolat termic;
• Contorizare: apometre, contor gaz, contor curent electric;
• Caracteristici bloc: interfon.
Apartamentul se vinde mobilat si utilat cu: plita electrica, cuptor, hota, masina de spalat rufe,frigider cu congelator,
Incalzirea se realizeaza prin centrala proprie, calorifere
Se accepta ca si modalitate de plata surse proprii sau credit bancar.
Apartament 3 camere semidecomandat de vanzare etaj intermediar Sibiu
Detalii Proprietate
Bucatarie
- Mobilata
- Utilata
Dotari
- Complet
- Mobilata
- Utilata
- Apometre
- Contor gaz
- Masina de spalat rufe
- Frigider
- Hota
- Interfon
Finisaje
- Finisat
- Exterior
- Bloc izolat termic
- Vopsea lavabila
- Faianta
- Parchet
- Gresie
- PVC
- Metal
- Lemn
Oferte similare în zona Tiglari:
Proprietăți asemănătoare:
