Descriere Imobil
Apartament 3 camere de vanzare, decomandat, 67 mp, zona Doamna Stanca, Sibiu.Apartament luminos si spatios, modern amenajat. Zona in care este amplasat acest apartament este una foarte bine cotata pe piata imobiliara, oferind locatarilor numeroase beneficii si acces facil catre numeroase obiective de interes public precum: magazine, restaurante, institutii bancare si numeroase locuri de munca din zona Shopping City.
Avantaje majore ale acestui apartament:
• Un loc de parcare inclus in pret
• Pretabil investitie sigura - bloc cu lift
• Orientare spre Soare
• Locatie ferita de aglomeratie - bloc retras de la strada principala
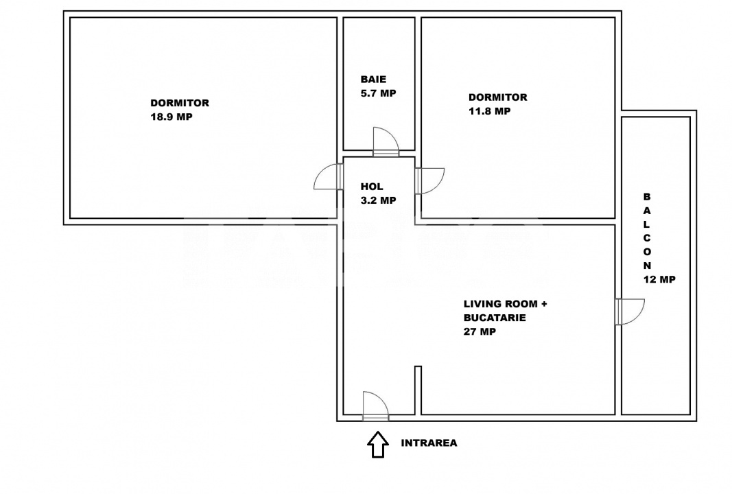
TABOO Imobiliare propune un apartament de vanzare cu 3 camere, decomandat, situat in localitatea Sibiu, zona Doamna Stanca, aflat la etajul 5 intr -un imobil tip bloc cu regim de inaltime pe Parter + 5 Etaje; anul constructiei 2015, structura caramida. Suprafata utila de 67 mp + balcon deschis de 12 mp.
Apartamentul este structurat astfel:
• Hol;
• Bucatarie;
• Baie;
• Living cu balcon;
• Dormitor cu balcon;
• Dormitor
• Hol intermediar;
Finisajele interioare sunt moderne:
• Usa intrare: metal;
• Usi interioare: celulare;
• Tamplarie ferestre: pvc, termopan;
• Pereti: vopsea lavabila, faianta, tapet;
• Podele: parchet, gresie.
Utilitati si dotari:
• Bucatarie: mobilata, utilata;
• Mobilat: complet;
• Utilitati: curent electric, apa, canalizare, gaz, catv, telefon, acces internet, fibra optica;
• Izolatii: exterior, bloc izolat termic;
• Contorizare: apometre, contor gaz, contor curent electric, contorizare separata;
• Caracteristici bloc: interfon, lift, acoperis.
Apartamentul se vinde mobilat si utilat cu: plita pe gaz, cuptor, hota, masina de spalat rufe, uscator rufe, masina de spalat vase, frigider cu congelator.
Incalzirea se realizeaza prin centrala proprie, calorifere si dispune de sistem de climatizare (A.C.)
Se accepta ca si modalitate de plata surse proprii sau credit bancar.
Apartament 3 camere parcare si bloc cu lift Doamna Stanca Sibiu
Detalii Proprietate
Bucatarie
- Mobilata
- Utilata
Dotari
- Complet
- Mobilata
- Utilata
- Apometre
- Contor gaz
- Masina de spalat rufe
- Frigider
- Masina de spalat vase
- TV
- Hota
- Interfon
- Lift
- Acoperis
Finisaje
- Finisat
- Exterior
- Bloc izolat termic
- Vopsea lavabila
- Faianta
- Tapet
- Parchet
- Gresie
- PVC
- Metal
- Celulare
Oferte similare în zona Doamna Stanca:
Proprietăți asemănătoare:
