Descriere Imobil

Apartament 3 camere de vanzare, semidecomandat, 80 mp, zona Selimbar, Sibiu.

In multe anunturi gasesti scris: "acest apartament poate fi numit acasa"... adevarat! Dar ce face cu adevarat sa fie acasa?
Acest apartament iti ofera totul de dinainte de a intra in el, mai exact, ai la dispozitie doua locuri de parcare. Odata ajuns in el, compartimentarea si functionalitatea acestuia o sa te faca sa iti doresti sa ajungi cat mai repede aici, de oriunde ai fi, in special sa prinzi apusurile de soare a carui raze nu pot decat sa iti aduca un zambet pe buze si o stare de bine!

Avantaje majore ale acestui apartament:
• Doua locuri de parcare incluse in pret si mentionate in contract;
• Etaj intermediar 1;
• 2 bai;
• Magazine in imediata proximitate;
• Scoli si gradinite;
• Locatie ferita de aglomeratie.

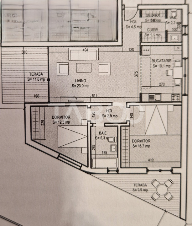
TABOO Imobiliare propune un apartament de vanzare cu 3 camere, semidecomandat, situat in localitatea Sibiu, zona Selimbar, aflat la etajul intermediar 1 intr-un imobil tip bloc cu regim de inaltime pe Parter + 2 Etaje; anul constructiei 2017, structura caramida. Suprafata utila de 80 mp + doua terase de 12 mp, respectiv 10 mp.

Apartamentul este structurat astfel:
• Hol la intrare;
• Bucatarie cu living si iesire pe terasa de 12 mp;
• Hol intermediar;
• Dormitor cu terasa de 10 mp;
• Dormitor;
• Baie cu geam pentru aerisire;
• Grup sanitar cu geam pentru aerisire.

Finisajele interioare sunt moderne:
• Usa intrare: metal;
• Usi interioare: celulare;
• Tamplarie ferestre: pvc, termopan;
• Pereti: vopsea lavabila, faianta;
• Podele: parchet, gresie.

Utilitati si dotari:
• Bucatarie: mobilata, utilata;
• Mobilat: complet;
• Utilitati: curent electric, apa, canalizare, gaz, catv, acces internet;
• Izolatii: exterior, bloc izolat termic;
• Contorizare: apometre, contor gaz, contor curent electric, contorizare separata;
• Caracteristici bloc: interfon.

Apartamentul se vinde mobilat si utilat cu: plita electrica, cuptor, hota, masina de spalat vase, masina de spalat rufe si frigider cu congelator.

Incalzirea se realizeaza prin centrala proprie cu calorifere.

Se accepta ca si modalitate de plata surse proprii sau credit bancar.

Apartament 3 camere 2 bai ETAJ 1 cu 2 locuri parcare Brana Selimbar

Detalii Proprietate

Bucatarie

  • Mobilata
  • Utilata

Dotari

  • Complet
  • Terasa
  • Wc serviciu
  • Mobilata
  • Utilata
  • Apometre
  • Contor gaz
  • Masina de spalat rufe
  • Frigider
  • Masina de spalat vase
  • TV
  • Hota
  • Interfon

Finisaje

  • Finisat
  • Exterior
  • Bloc izolat termic
  • Vopsea lavabila
  • Faianta
  • Parchet
  • Gresie
  • PVC
  • Metal
  • Celulare

Oferte similare în zona Selimbar:

Proprietăți asemănătoare:

suna-ne-acuma
hai-sa-vorbim-pe-whatsapp