Descriere Imobil
Apartament 2 camere de vanzare, decomandat, 59 mp, zona Turnisor, Sibiu.Avantaje majore ale acestui apartament:
• clasa energetica A
• bloc cu lift, boxe si garaj
• numeroase spatii verzi
• locuri de joaca pentru copii
• incalzire in pardoseala
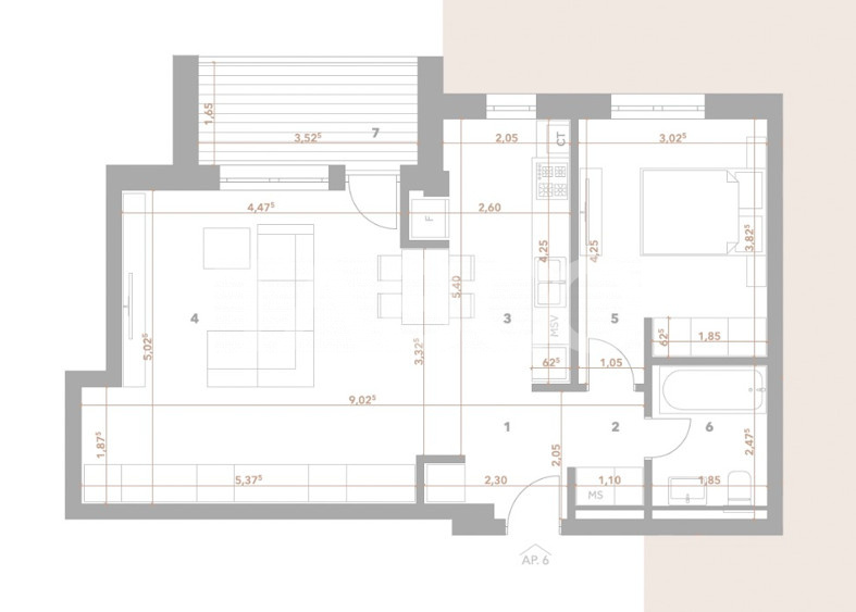
TABOO Imobiliare propune un apartament de vanzare cu 2 camere, decomandat, situat in localitatea Sibiu, zona Turnisor, aflat la parter intr -un imobil tip bloc cu regim de inaltime pe Parter + 4 Etaje; anul constructiei 2024, structura caramida. Suprafata utila de 59 mp + balcon de 6 mp.
Apartamentul este structurat astfel:
• Bucatarie cu living si balcon;
• Hol;
• Baie;
• Dormitor;
Finisajele interioare sunt moderne:
• Usa intrare: metal;
• Tamplarie ferestre: pvc, termopan;
• Pereti: vopsea lavabila, faianta;
• Podele: parchet, gresie.
Loc de parcare: In pretul acestui apartament de vanzare in Sibiu este inclus si un loc de parcare. Contra cost, clientii pot achizitiona un garaj.
Utilitati si dotari:
• Bucatarie: nemobilata, neutilata;
• Mobilat: nemobilat;
• Utilitati: curent electric, apa, canalizare, gaz, catv, telefon, acces internet, fibra optica;
• Izolatii: exterior, bloc izolat termic;
• Contorizare: apometre, contor gaz, contor curent electric;
• Caracteristici bloc: interfon, lift.
Apartamentul se vinde nemobilat.
Incalzirea se realizeaza prin centrala proprie, incalzire pardoseala.
Se accepta ca si modalitate de plata surse proprii sau credit bancar.
Apartament 2 camere de vanzare decomandat 59 mp zona Turnisor Sibiu
Detalii Proprietate
Bucatarie
- Nemobilata
- Neutilata
Dotari
- Nemobilat
- Nemobilata
- Neutilata
- Apometre
- Contor gaz
- Interfon
- Lift
Finisaje
- Finisat
- Exterior
- Bloc izolat termic
- Vopsea lavabila
- Faianta
- Parchet
- Gresie
- PVC
- Metal
Oferte similare în zona Turnisor:
Proprietăți asemănătoare:
 
                             
                             
                             
                             
                             
                             
                             
                             
                             
                                 
                                 
                                 
                                 
                                 
                                 
                                 
                                 
                                 
                             
                                 
                                 
                                 
                                 
                                 
                                 
                                 
                                 
                                
